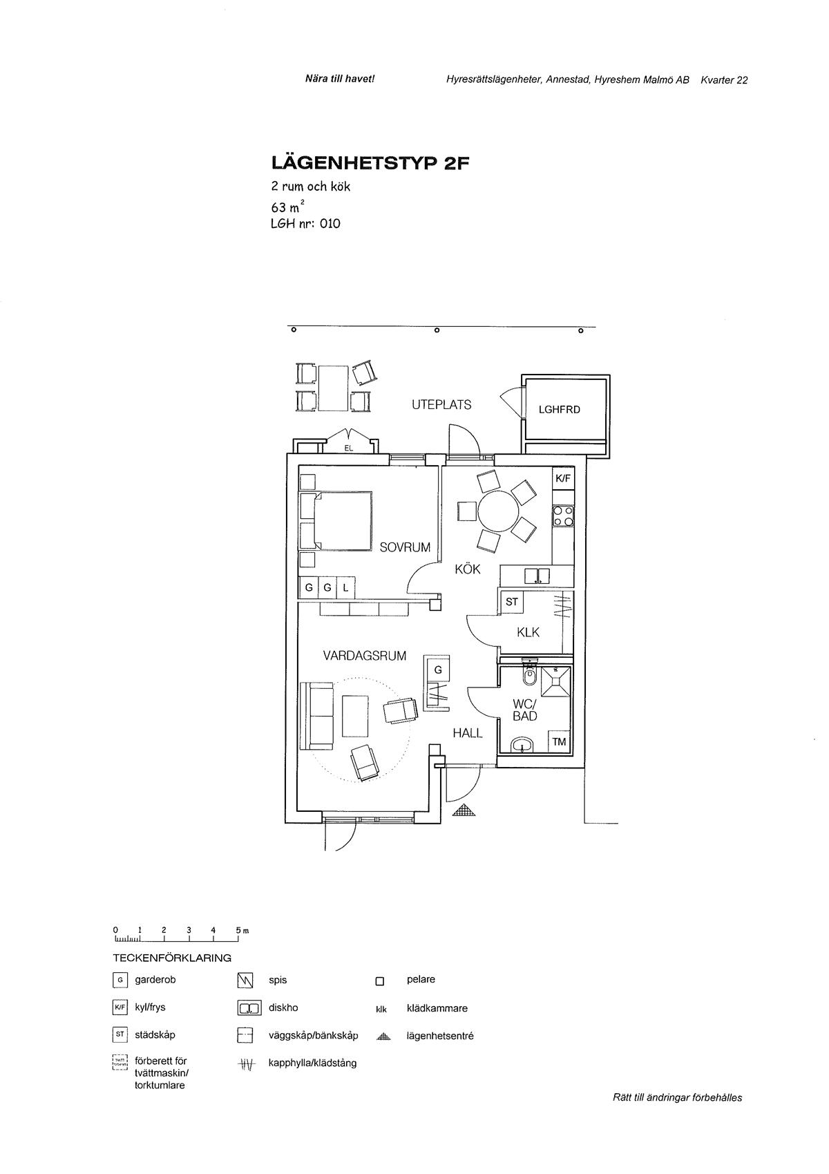
Vagnmakarebyn 7E, Bunkeflostrand





This listing will be gone within hours.
We scan 8 platforms every 5 minutes and email you the instant a matching 2-room apartment in Bunkeflostrand appears. Be first. Apply before the landlord closes applications.
Turn on alerts — freeNo personnummer · No card on signup · Cancel anytime
More in Bunkeflostrand

Skräddarebyn 3B, Bunkeflostrand
2 rm · 60 m²10 151 kr
via Qasa
Vagnmakarebyn 1O, Bunkeflostrand
2 rm · 65 m²10 109 kr
via Qasa
Smedmästarebyn 2G, Bunkeflostrand
2 rm · 60 m²10 069 kr
via Qasa
Skomakarebyn 6F, Bunkeflostrand
2 rm · 61 m²10 231 kr
via Qasa
Stenöregatan, Bunkeflostrand
2 rm · 50 m²10 000 kr
via Qasa
Vagnmakarebyn 7K, Bunkeflostrand
2 rm · 65 m²10 298 kr
via QasaRenting as an expat in Bunkeflostrand
Read first
Renting in Sweden without a personnummer
Which documents landlords accept and how to make your application stand out.
Stay safe
How to spot a Swedish rental scam in 60 seconds
The exact red flags and a free checker you can run before you pay a krona.
Before you sign
Swedish rental contracts explained
Every clause decoded — deposits, notice periods, utilities, what to verify before signing.